Tính toán thông số máy bơm sẽ giúp cho người dùng chọn được máy bơm phù hợp nhất. Tuy nhiên cách tính các thông số này như nào không phải ai cũng biết.
Sau đây Quang Phước PE sẽ hướng dẫn tính toán thông số bơm theo cách đơn giản nhất. Hãy cùng theo dõi nhé!
1. Đặc tính của bơm và hệ thống ống
1.1 Thông số máy bơm – Cột áp tổng của hệ thống
Bao gồm cột áp tĩnh (static head) và cột ma sát (friction head).
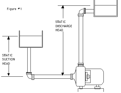
Cột áp tĩnh: là chênh lệch độ cao tính từ mực lỏng hút đến mực lỏng đẩy. Thông thường tính bằng mét cột nước.
1 kgf/cm2 = 10 m cột nước.
1 bar = 10,2 m cột nước.

=> Cột áp tĩnh của bơm nước giải nhiệt và bơm nước lạnh
=> Cột áp tĩnh khi bơm nước lên bồn
1.1.2 Thông số máy bơm – Cột áp ma sát (Hf)
Là tổn thất áp suất gây ra bởi ma sát do lưu chất di chuyển trong đường ống. Tổn thất nầy tỉ lệ với bình phương lưu lượng:
Hf = kQ2
Q: lưu lượng
k: hệ số

1.1.3 Thông số máy bơm – Cột áp tổng
Cột áp tổng của hệ thống là tổng của cột áp tĩnh và cột áp ma sát như hình 3.

1.1.4 Đặc tính của bơm ly tâm
Hình 4 là đặc tính thay đổi lưu lượng theo cột áp của bơm ly tâm. Đặc tuyến cho thấy khi cột áp của bơm tăng lên thì lưu lượng của bơm giảm.
– Đặc tuyến cắt trục tung ở cột áp ứng với lưu lượng bằng không (ứng với van đẩy đóng).
– Đặc tuyến cắt trục hoành ở cột áp = 0 (ứng với đầu đẩy hở).

1.2 Điểm làm việc của hệ thống
Đường đặc tính của bơm cắt đường cột áp của hệ thống tại điểm làm việc (operating point) như hình 5.

1.3 Thông số máy bơm – Cột áp hút dương (Net Positive Suction Head)

Hình 6 giải thích nguyên lý làm việc của bơm ly tâm: nguyên lý là dựa vào biến đổi động năng của dòng lưu chất thành thế năng áp suất. Do đó, để tạo được động năng lớn thì cần lưu chất ở thể lỏng à áp suất (tuyệt đối) vào ngõ hút của bơm phải lớn hơn áp suất bốc hơi (tuyệt đối) của lưu chất ở nhiệt độ tương ứng. Áp suất hút (tuyệt đối) tại ngõ hút của bơm được gọi là NPSHa (cột áp dương cần thiết, NPSH available): đây là thông số của hệ thống.
Khi làm việc, tổn thất áp suất qua bơm cũng có thể làm lưu chất bốc hơi à NPSH hoặc NPSHr (Cột áp hút qui định, NPSH require) là chênh lệch áp suất qui định từ đầu hút với áp suất trong bơm để môi chất không bị bốc hơi: đây là thông số của bơm.
Để bơm làm việc ổn định thì NPSHa > NPSHr
a. Cách tính thông số máy bơm NPSHa: NPSHa được tính theo cột áp tuyệt đối

Ghi chú: Hình nầy biểu thị SAI cột áp (phải tính từ mặt thoáng của chất lỏng)
* NPSHa = Áp suất trên mặt thoáng + cột áp dương – tổn thất ma sát – áp suất bốc hơi của lưu chất hoặc:
* NPSHa = Áp suất trên mặt thoáng – cột áp âm – tổn thất ma sát – áp suất bốc hơi của lưu chất
b. Liên hệ giữa NPSHa và NPSHr

Ghi chú: NPSHa > NPSHr thì bơm mới làm việc ổn định (không tạo nên bọng khí khi hút).
Thực tế cần: NPSHa > NPSHr + 0,6 m
– NPSHr được ghi theo m cột nước (m Aq). Do đó, nếu lưu chất khác thì phải qui đổi cột áp về lưu chất tương ứng.

c. Biện pháp tăng NPSHa
– Tăng kích thước đường ống hút (tốc độ < 1 m/s).
– Tránh co, cút trên đường ống hút.
– Tăng chiều cao cột áp hút.
– Tăng size phin lọc hút của bơm lỏng( ASHRAE handbook).
2. THÔNG SỐ MÁY BƠM NƯỚC
2.1. Đặc tuyến của bơm nước

– Quan hệ: cột áp – lưu lượng
– Hiệu suất lớn nhất ứng với cánh bơm lớn nhất
– Có thể có nhiều đường kính cánh bơm trong cùng một vỏ à có thể tiện cánh (giảm đường kính cánh bơm) cho phù hợp với ứng dụng mong muốn
– Cột áp cực đại
– Đường hiệu suất tốt nhất (BEP – Best Efficiency Point)
– Khoảng làm việc của bơm (ngoài khoảng làm việc sẽ giảm tuổi thọ của bơm).
2.2 Tính công suất bơm nước
Công suất hữu dụng bơm nước (kW) = Q x delta P x p x g / 1000 (1)
Q: lưu lượng (m3/s)
Delta P: cột áp tổng (m H2O)
p: khối lượng riêng của nước (kg/ m3).
g: gia tốc trọng trường( = 9,81 m/s2).
à Công suất trên trục bơm nước = Công suất hữu dụng/hiệu suất
Hiệu suất được tra từ đồ thị của bơm
Ex: hình 9 cho: Q = 40 m3/h, delta P = 25 m, hiệu suất p = 0,5
Vậy công suất hữu dụng = (40/3600) x 25 x 1000 x 9,81 / 1000 = 2,725 kW à Công suất trên trục = 2,725/0,5 = 5,45 kW (tương đương 7,5 HP như tra trên đồ thị).
Kinh nghiệm chọn máy bơm gia đình dựa vào công suất
Dựa theo nhu cầu sử dụng khác nhau của gia đình mà chúng ta sẽ chọn máy bơm với các tính năng riêng:
- Khi chúng ta chỉ cần sử dụng một máy thì hãy chọn bơm có công suất dưới 100W.
- Nếu gia đình cần dùng 2 hoặc 3 thiết bị tốt nhất nên chọn loại máy có công suất nằm trong khoảng 100W – 200W.
- Khi nhu cầu sử dụng bắt buộc phải có 3 – 4 máy, bạn hãy lựa chọn bơm loại từ 200W trở lên.
Máy có công suất càng cao thì lực nước được đẩy sẽ càng lớn nên chúng ta hãy cân nhắc trước khi chọn. Người dân muốn đẩy nước lên các bồn chứa cần dùng máy bơm đẩy cao:
- Nhà 1 hoặc 2 tầng sử dụng máy có công suất 125W.
- Nhà cao 3, 5 tầng thích hợp với máy có công suất 200W.
- Nhà có độ cao trên 6 tầng nên chọn loại 350W.
Trên đây là cách tính toán thông số máy bơm đơn giản nhất mà bất kỳ ai cũng có thể thực hiện được trước khi mua. Nếu có vấn đề gì thắc mắc, hãy liên hệ Quang Phước để được tư vấn.
Đơn vị phân phối máy bơm biến tần Ebara uy tín số 1 tại thị trường Việt Nam
Công Ty Cổ Phần Bơm và Thiết bị Quang Phước (QP-PE) được xây dựng và trưởng thành từ đội ngũ ban lãnh đạo và nhân sự với trên 25 năm kinh nghiệm trong lĩnh vực phân phối, cung cấp, lắp đặt và tư vấn đồng bộ hệ thống thiết bị nhà trạm máy bơm.
QP-PE là đại diện chính thức phân phối cấp 1 máy bơm Ebara tiêu chuẩn – Nhật Bản tại thị trường Việt Nam với kinh nghiệm và nỗ lực không ngừng chúng tôi liên tiếp vượt chỉ tiêu doanh số từng năm, đặc biệt từ năm 2018 đến nay được Tập đoàn Ebara – Chi nhánh Công ty TNHH Ebara Việt Nam công nhận là nhà phân phối lớn số 1 tại thị trường Việt Nam.
Sản phẩm và dịch vụ của Công ty Quang Phước được cung cấp rộng rãi trong các lĩnh vực như:
- Nhà máy cấp thoát nước lớn tại các tỉnh Bình Dương, Phú Thọ, Quảng Ninh, Hà Nội, …
- Hệ thống máy bơm nước giải nhiệt cho HVAC, bơm nước sản xuất cho các nhà máy khu công nghiệp chế xuất
- Hệ thống máy bơm cấp thoát nước
- Hệ thống máy bơm phòng cháy chữa cháy cho các khu đô thị thành phố mới như Ecopark Hưng Yên, Vin Ocean Park, Công viên nước Sun World Hạ Long
- Hệ thống trung tâm thương mại của Aeon Mall, sân bay Vân Đồn Quảng Ninh,…
- …
Mọi thông tin quý khách vui lòng liên hệ:
- Hotline Hà Nội: 0912083448
- Hotline Hồ Chí Minh: 0901183122
- Địa chỉ văn phòng đại diện ở TPHCM và HN:
- 62 đường số 1, KDC Cityland, Phường 7, Gò Vấp.
- 286 Quang Trung, phường Quang Trung, quận Hà Đông, Hà Nội.
>> Tham khảo thêm các bài viết liện quan:


